行业动态

了解最新公司动态及行业资讯

有机污染低能耗土壤热脱附的三个系统方法

2018-10-11 01:16:54 182 编辑:admin 来源:本站
    土壤污染作为与大气污染、水污染并列的三大污染之一,已严重威胁农业、工业发 展,甚至人类健康。有机污染土壤是土壤污染中重要的组成部分,由于其污染物广泛、去除 困难,导致大量的土壤无法被有效利用。土壤热脱附技术修复速率快,污染物去除效率高,应用 不受环境限制,尤其适用于挥发性,半挥发性有机污染场地的应急修复。然而,传统的土壤热脱 附技术存在两方面问题,一是过程能耗较高,热脱附过程中需要足够高的温度使得土壤中 污染物汽化,然而,对热脱附后尾气中的热量尚未回收利用或利用不充分。 
土壤热脱附
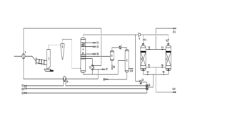
     有机污染低能耗土壤热脱附?急冷?吸附耦合修复方法。所述修复方法包括三大系统:土壤热脱附系统,急冷系统和吸附系统。其中,热脱附系统中主要的单元操作设备包括空气预热器,热脱附装置,尾气除尘装置。急冷系统中主要的单元操作设备包括:急冷塔,蒸汽发生器,油水分离器,辅助冷凝器,再生塔。吸附系统中主要的单元操作设备包括:压缩机,吸附塔组,次级冷凝器,真空泵以及水冷器等。本发明不但对热脱附高温尾气中热量进行回收利用,同时实现了尾气中污染物的资源化回收,达到绿色、节能的治理目的。
 
 
 

30

装备制造经验

立即免费获取土壤修复方案

为用户提供及时、高效、便捷的服务

在线咨询
AG视讯环境希望与你携手,共创美好未来...
5